Beschikbaar
Eikenhoven 43
6225 GV Maastricht
€ 355.000,- k.k.
95 m2
4 slaapkamers
Omschrijving
Over de woning.
Rustig wonen in geliefd Amby
Aan Eikenhoven 43 in Maastricht ligt deze tussenwoning uit 1980, gelegen in een verkeersarme woonomgeving in de populaire wijk Amby. Hier woon je rustig, groen en toch met alle dagelijkse voorzieningen binnen handbereik. Dankzij de gunstige ligging nabij de A2 en A79 zijn steden en uitvalswegen uitstekend bereikbaar.
De woning beschikt over een gebruiksoppervlakte wonen van ca. 95 m², met daarnaast ca. 20 m² overige inpandige ruimte op de zolderverdieping. Deze verdieping is bereikbaar via een vaste trap en biedt uitstekende mogelijkheden voor het realiseren van een volwaardige 4e slaapkamer, werkruimte of hobbykamer.
De woning is voorzien van kunststof kozijnen met HR++ beglazing uit 2012 en een HR cv-ketel uit 2021 (eigendom). Het energielabel is B. Dankzij de grote pui aan de tuinzijde profiteert de woonkamer van veel natuurlijke lichtinval, wat zorgt voor een prettige en open sfeer.
Met drie slaapkamers, een zonnige tuin op het westen en uitbreidingspotentie op zolder is dit een woning die geschikt is voor zowel starters, gezinnen als doorstromers.
Kom binnen.
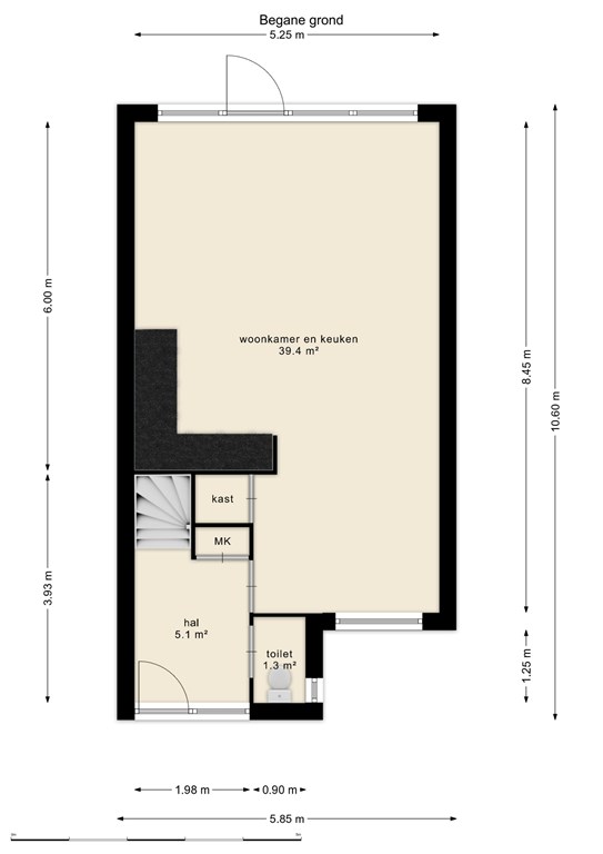
Via de voortuin, die evt. ruimte biedt voor een auto, bereik je de ruime entreehal met meterkast, toiletruimte met fonteintje en trapopgang naar de eerste verdieping.
De woonkamer vormt samen met de open keuken een royale leefruimte van ca. 39 m². Door de brede pui aan de tuinzijde stroomt het daglicht rijkelijk naar binnen. De open keuken is gedateerd, maar biedt mogelijkheden om naar eigen smaak te moderniseren of evt. te verplaatsen, via de kruipruimte is leidingwerk eenvoudig verplaatsbaar.
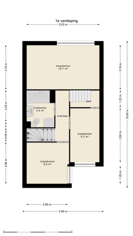
Op de eerste verdieping bevinden zich drie goed bruikbare slaapkamers van respectievelijk ca. 8 m², 9 m² en 17 m². De grootste slaapkamer is royaal van formaat en biedt volop ruimte voor een tweepersoonsbed en kastruimte. De badkamer (ca. 5 m²) is compleet ingericht met ligbad, toilet, wastafelmeubel en aansluiting voor de wasmachine.
De tweede verdieping is bereikbaar via een vaste trap. Momenteel betreft dit een ruime bergzolder met opstelplaats van de cv-ketel en een wastafel. Door de maatvoering en bereikbaarheid is deze verdieping geschikt te maken als 4e slaapkamer of thuiswerkruimte.
Buiten.
Aan de achterzijde ligt een onderhoudsvriendelijke stadstuin op het oosten. Hier geniet je een groot deel van de dag van de zon. De tuin beschikt over een praktische achterom en een vrijstaande schuur van ca. 8 m², ideaal voor fietsen, opslag of tuingereedschap.
De voortuin biedt mogelijk kansen om geschikt te maken als eigen parkeerplaats op eigen terrein.
Omgeving.
Amby is een gewilde woonwijk in Maastricht, bekend om haar prettige woonklimaat, goede voorzieningen en gunstige bereikbaarheid. In de directe omgeving vind je winkels, scholen, sportvoorzieningen en openbaar vervoer.
Daarnaast woon je nabij natuur- en wandelgebieden, waardoor rust en recreatie altijd dichtbij zijn. De ligging ten opzichte van de A2 en A79 maakt deze locatie extra aantrekkelijk voor forenzen richting Eindhoven, Heerlen, Luik en Aken.
Installaties en verbeteringen:
2012: kunststof kozijnen met HR++ beglazing
2021: HR cv-ketel vernieuwd (eigendom)
Informatie.
Bouwjaar: 1980 (BAG)
Gebruiksoppervlakte wonen: ca. 95 m²
Overige inpandige ruimte: ca. 20 m²
Perceeloppervlakte: 138 m² (kadaster)
Energielabel: B, geldig tot 18-04-2036
Bijzonderheden.
- 3 slaapkamers op de 1e verdieping, 4e slaapkamer mogelijk op de 2e verdieping
- geheel voorzien van kunststof kozijnen met HR++ beglazing (2012)
- stadstuin met vrijstaande schuur en achterom
- enige modernisering vereist
- mogelijkheden voor het realiseren van een eigen oprit
- transportdatum in overleg, maar is op korte termijn mogelijk
- in de koopakte wordt een ouderdomsclausule opgenomen, het staat de koper vrij om een bouwkundige inspectie te laten uitvoeren
- de 10% waarborgsom/bankgarantie is van toepassing en dient te worden gestort/afgegeven uiterlijk voor het verstrijken van de ontbindende voorwaarde financiering
- de afmetingen zijn gebaseerd op de branchebrede meetinstructie (BBMI) (op basis van de NEN2580). Meetfouten kunnen per abuis voorkomen en cijfers worden afgerond. Makelaar kan niet aansprakelijk gesteld worden voor afwijkingen ten nadele van de koper. Als koper krijg je de gelegenheid om de woning en de ruimtes zelf na te meten.
Bezichtigen
Alle media
Kaart
Plattegronden
Brochure
Kenmerken
Overdracht
- Vraagprijs
- € 355.000,- k.k.
- Vierkantemeterprijs
- € 3.737
- Status
- Beschikbaar
- Aanvaarding
- In overleg
- Aangeboden sinds
- 1 week
Bouwvorm
- Soort
- Woonhuis
- Type
- Tussenwoning
- Bouwjaar
- 1980
- Daktype
- Zadeldak
- Onderhoudsniveau binnen
- Redelijk
- Onderhoudsniveau buiten
- Goed
Oppervlakte & Inhoud
- Gebruiksoppervlakte
- 95 m2
- Inhoud
- 357 m3
- Perceeloppervlakte
- 138 m2
Indeling
- Kamers
- 5 kamers
- Slaapkamers
- 4 slaapkamers
- Badkamer faciliteiten
- Ligbad, Toilet, Wastafelmeubel, Wasmachine aansluiting
- Voorzieningen
- Tuin, ventilatie, kabel TV, balkon en schuur / berging
Energie
- Energielabel
-
- Isolatie
- Dak isolatie, Muur isolatie, Spouw muur
- Verwarming
- CV ketel
- Warm water
- CV ketel
- CV Ketel
- HR-107
Buitenruimte
- Ligging
- Aan een rustige straat, woongebied
- Tuin
- Achtertuin, Voortuin
- Oppervlakte tuin
- 41 m2
- Positie hoofdtuin
- Oosten
Garage


